Wien_2 - Apriori-project

Перейти к контенту

Главное меню:

Индивидуальный энергоэффективный жилой дом. г.Вена, Австрия
 
Площадь помещений 1 этажа: 151 м²
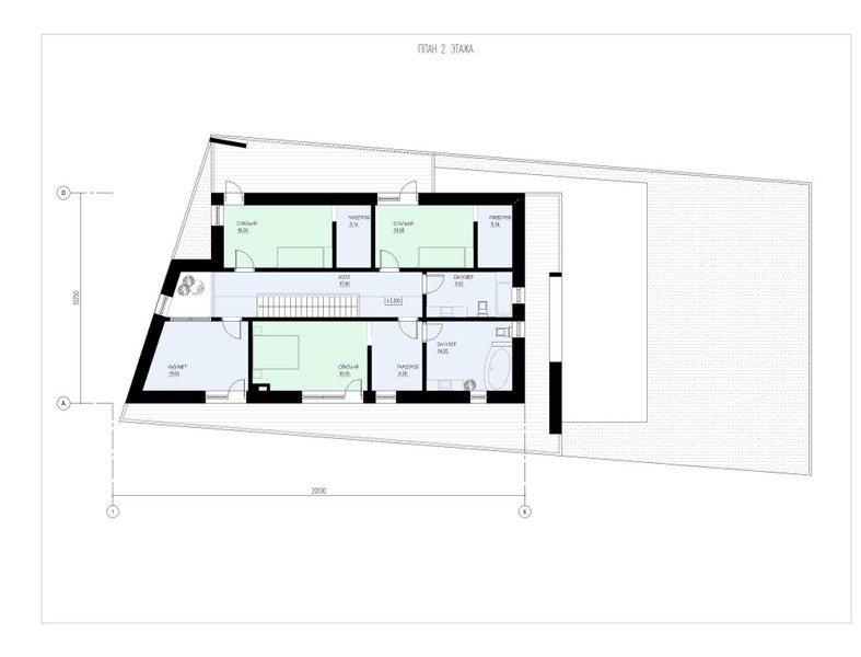
Площадь помещений 2 этажа: 125 м²
Площадь отдельно-стоящих зданий: 69 м²

Общая площадь здания: 275  м²
Строительный объем здания: 1986  м³
Площадь застройки здания: 275   м²

Проект здания предусматривает:
  • обеспечение максимального комфорта в здании
  • обеспечение минимальных затрат за счёт использования в преокте комплекса энергоэффективных технических решений, альтернативных источников энергии;
  • экологическая безопасность применяемых материалов, минимальное негативное влияние на окружающую среду.

2015 год.
 
 
Назад к содержимому | Назад к главному меню